Info Terkini Denah Rumah Tingkat Ukuran 5x8
Oktober 12, 2020
Gambar Rumah 5x8 Meter, Rumah Minimalis 2 Lantai, Desain Rumah Kecil 4 Kamar Tidur, Video Desain Rumah Minimalis 3 kamar tidur, Rumah Minimalis 2 Lantai Ukuran 5x8, Denah Rumah Ukuran 8x5,
Info Terkini Denah Rumah Tingkat Ukuran 5x8 - Denah Rumah dapat tampak tampilan yang menyerupai tempat tinggal futuristik yang modern. Dengan menentukan denah rumah tingkat ukuran 5x8 berukuran besar sangat cocok untuk menjadikan ruangan terasa lebih leluasa dan lenggang. Secara visual, denah kediaman yang berukuran besar juga memberikan sentuhan yang lebih berkelas, apalagi jikalau garis antar denah kediaman tingkat ukuran 5x8 diusahakan agar tidak terlihat. Denah Rumah juga cocok untuk pecinta minimalis, desain seperti ini memberikan sentuhan yang lebih modern, terang dan indah dan nyaman.
Pola dan warna pada motif denah rumah memberikan andil yang besar dalam menciptakan kesan yang ingin dihadirkan. Dari sini kami akan berbagi inspirasi mengenai denah rumah tingkat ukuran 5x8 yang terbaru dan populer. Inilah denah rumah terbaru yang memiliki motif kekinian.Ulasan kali ini terkait denah rumah dengan judul artikel Info Terkini Denah Rumah Tingkat Ukuran 5x8 berikut ini.

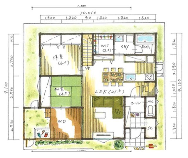
Denah Rumah 2 Lantai Ukuran 5x8 Top Rumah . Sumber Gambar : toprumahmodern.blogspot.com
Contoh Gambar Desain Rumah 5x8 Informasi Desain dan Tipe
3 25 2019 Desain Dan Denah Rumah Sederhana Dengan Biaya Murah Ndik Home via ndikhome com 15 Denah Rumah Minimalis 2 Kamar Tidur 3D 2019 Terbaru Dekor Rumah via dekorrumah net 10 Koleksi Inspirasi Dari Desain Rumah Minimalis 5X8 RumahKusite via rumahku site 21 Desain Unik Rumah Mungil 2 Lantai Buat Keluarga Baru via idntimes com Pin By Habibi On Denah Rumah

Gambar Rumah Minimalis Ukuran 5x8 . Sumber Gambar : 3setsofblue1green.blogspot.com
Denah Rumah 2 Lantai Ukuran 5x8 Top Rumah
7 31 2019 Denah Rumah 2 Lantai Ukuran 5x8 Hunian yang begitu sederhana seperti yang admin bahas dibawah ini merupakan konsep hunian yang sederhana serta di bangun oleh tukang Umumnya yang punya rumah tidak banyak memiliki gambaran dalam merancang hunian namun jangan karena tempat tinggal yang sangat standar kayak ini sangat banyak di temui dalam suatu kampung dan
Denah Rumah Ukuran 5x8 92 Foto Denah Rumah Ukuran 8x12 . Sumber Gambar : tanomah.net
Denah Rumah Sederhana Ukuran 5x8 Top Rumah
6 29 2019 Denah Rumah Sederhana Ukuran 5x8 kamu yang memiliki rancangan rumah modern hidupnya akan nyaman sebab mereka bisa menghemat waktu untuk merapikan tempat tinggal dan menata rumah kembali tetap bersih Dengan kata lain rumah jenis ini akan gampang buat membersihkannya kamu nggak harus bingung bingung untuk melakukan tugas hunian karena dengan rumah

Denah Rumah Sederhana Ukuran 5x8 Top Rumah . Sumber Gambar : toprumahmodern.blogspot.com
71 Gambar Denah Rumah Ukuran 5x8 Yang Bisa Anda Tiru
11 23 2019 Denah Rumah Ukuran 5x8 Apakah saat ini anda sedang membutuhkan sebuah Ide Denah Rumah Ukuran 5x8 Yang Bisa Anda Tiru nah jika ia tanpa panjang lebar berikut adalah 98 Foto Denah Rumah Ukuran 5x8 Yang Bisa Anda Tiru Download Now Denah Rumah Sederhana Ukuran 5x8 Top Rumah Download Now Denah Rumah Ukuran 5x8 Meter All Desain Download Now Desain Rumah Ukuran 5x8

Struktur Desain Rumah Minimalis Modern Ukuran 5x8 Yg . Sumber Gambar : arsitekindonesia.id
Desain Rumah Sederhana Ukuran 5x8 Desain Rumah Mesra
Gambar rumah ukuran 5x8 hvdtd94o Source rumahminimalis123 info Desain rumah minimalis 6x12 desain rumah Source www gaptekupdate id Desain dapur kecil tanpa kitchen set home design life styles Source forexfan info Desain rumah sederhana impian yang ramah kantong home design life

Gambar Desain Rumah Minimalis Modern Ukuran 5x8 Terbaru . Sumber Gambar : www.gambarrumah.id
contoh desain rumah ukuran 5x9 Designarsitektur com
Contoh Desain Rumah Ukuran 5x9 2020 Dapatkan ragam kumpulan ide untuk Contoh Desain Rumah Ukuran 5x9 2020 dari berbagai model melalui situs designarsitektur com salah satunya bisa anda dapatkan dibawah ini Desain Rumah Type 60 Model Minimalis Sederhana Modern Terbaru

Desain Rumah Tingkat Minimalis Ukuran Kecil dan Besar di . Sumber Gambar : www.youtube.com
354 Foto Desain Rumah 5x8 2 Lantai Kekinian Model Rumah
Download Now Gambar Denah Rumah Ukuran 5x8 Desain Rumah Modern Download Now 33 Denah Rumah Minimalis 2 Kamar Tidur Rumahku Unik Download Now Denah Rumah Sederhana Ukuran 5x8 Top Rumah Download Now 21 Tempel Tengah Tepat Teralis Teras Terbaik Terbaru Terbuka Terjun Ternak Terpal Tertib Tertutup Tiang Tidak Tidur Tikus Timur Tinggal Tinggi

Baru 28 Gambar Rumah Minimalis Dan Ukurannya Simple Dan . Sumber Gambar : www.lamsel.com
denah rumah minimalis ukuran 5x7 Designarsitektur com
Denah Rumah Minimalis Ukuran 5x7 2020 Dapatkan ragam kumpulan ide untuk Denah Rumah Minimalis Ukuran 5x7 2020 dari berbagai model melalui situs designarsitektur com salah satunya bisa anda dapatkan dibawah ini Desain Rumah Type 60 Model Minimalis Sederhana Modern Terbaru

Gambar Rumah Minimalis Ukuran 5x8 . Sumber Gambar : 3setsofblue1green.blogspot.com
17 Gambar Denah Rumah Minimalis Keluarga 3 Kamar Sejasa com
2 Denah rumah 3 kamar ukuran 7 9 Dengan karakter warna yang berbeda di setiap ruangan membuat Anda tidak akan bosan dengan rumah Anda Keberadaan teras di kamar tidur utama merupakan keunikan dari denah rumah 3 kamar ini sumber architecturendesign net 3

Contoh Gambar Desain Rumah 5x8 Informasi Desain dan Tipe . Sumber Gambar : rumahkita.id
17 Desain Rumah Minimalis Modern 3 Kamar Tidur Paling
Ukuran kamar yang ideal untuk denah rumah 1 lantai 3 kamar tidur yakni semuanya sebesar 3 m x 3 m Tapi dengan menggunakan tipe 65 kan lebih memungkinkan Anda memiliki sisa ruang yang lebih sekitar 2 5 m x 2 m Sisa ruangan tersebut bisa di manfaatkan untuk kamar pembantu atau juga gudang Meskipun sbenarnya ruangan ini tidak wajib ada akan

Contoh Gambar Desain Rumah 5x8 Informasi Desain dan Tipe . Sumber Gambar : rumahkita.id

Desain rumah minimalis ukuran bangunan 5x8 di lahan 5x10 . Sumber Gambar : www.youtube.com

Gambar Rumah Sederhana Ukuran 5x8 Gambar Oz . Sumber Gambar : gambaroz.blogspot.com

Ide Desain Rumah Tingkat 2 Lantai Ukuran 7 x 10 Meter . Sumber Gambar : www.youtube.com

Bentuk Desain Rumah 2 Lantai Ukuran 5x8 Terlihat Elegan . Sumber Gambar : www.gambarrumah.id

Desain Rumah Minimalis 2020 Ukuran 5x8 YouTube . Sumber Gambar : www.youtube.com

Denah Rumah Ukuran 5x8 Desain Rumah Minimalis Sederhana . Sumber Gambar : tanomah.net

24 Trend Desain Rumah Minimalis 2 Lantai Ukuran 5X8 Paling . Sumber Gambar : deagamdesign.com

Model Rumah Minimalis Ukuran 7x12 . Sumber Gambar : www.desainrumahminimalismodern.com

Kumpulan Rumah Ukuran 5x8 Paling Baru Pambaboma com . Sumber Gambar : pambaboma.com

Download 50 Desain Rumah Minimalis Modern Ukuran 5x8 . Sumber Gambar : komosisirumah21.blogspot.com
Denah Rumah Ukuran 5x8 Landasan Pilar Dengan Tangan anda . Sumber Gambar : tanomah.net

Contoh Gambar Desain Rumah 5x8 Informasi Desain dan Tipe . Sumber Gambar : rumahkita.id

Gambar Desain Rumah 2 Lantai Ukuran 5x8 Terbaru Gambar Rumah . Sumber Gambar : www.gambarrumah.id

Desain Rumah Terbaru 2020 Ukuran 6 5x8 5 Meter 2 Kamar . Sumber Gambar : www.youtube.com

Denah Rumah Ukuran 5x8 Desain Rumah Minimalis Dengan Biaya . Sumber Gambar : tanomah.net
Rumah Tingkat Ukuran 8x12 Kebaya Solo d . Sumber Gambar : kebayasolod.blogspot.com

Cara Menghitung Luas Bangunan Pengertian Rumus Hitung . Sumber Gambar : panduancara.com

Denah Rumah Sederhana Untuk 1 2 3 4 Kamar Tidur dan Tipe . Sumber Gambar : ndikhome.com

Denah Rumah Ukuran 5x8 Info Jual Beli Tanah Rumah Jogja . Sumber Gambar : tanomah.net
Ukuran Denah Rumah 5x8 Soalan bc . Sumber Gambar : soalanbc.blogspot.com
Denah Rumah Ukuran 5x8 5600 Gambar Rumah 2 Lantai Ukuran . Sumber Gambar : tanomah.net

Denah Rumah Ukuran 5x8 Tahun 2019 Jenis Barang Merk Model . Sumber Gambar : tanomah.net
Denah Rumah Ukuran 5x8 Landasan Pilar Dengan Tangan anda . Sumber Gambar : tanomah.net
Denah Rumah Ukuran 5x8 Jual Pajangan Mobil Tik tok D Bebek . Sumber Gambar : tanomah.net